INFO



11/25
10/25
06/25
09/25
03/23 

ND

07/25
11/24
09/25
Yi Zhou is a undergraduate student at the Bartlett School of Architecture. Born in Beijing in 2006, Zhou is based in Vancouver and currently studies in London. Zhou’s work is interested in the crossroads of locality, materials, and experimentation in architecture/design. 


crazydesignlab@gmail.com
+44 07826987998
@crazydesignlab



WASTELANDS
NOV 2025
WASTELANDS
NOVEMBER 2025

Hastings Longhouse

Design 
May 2022


Project Statement:
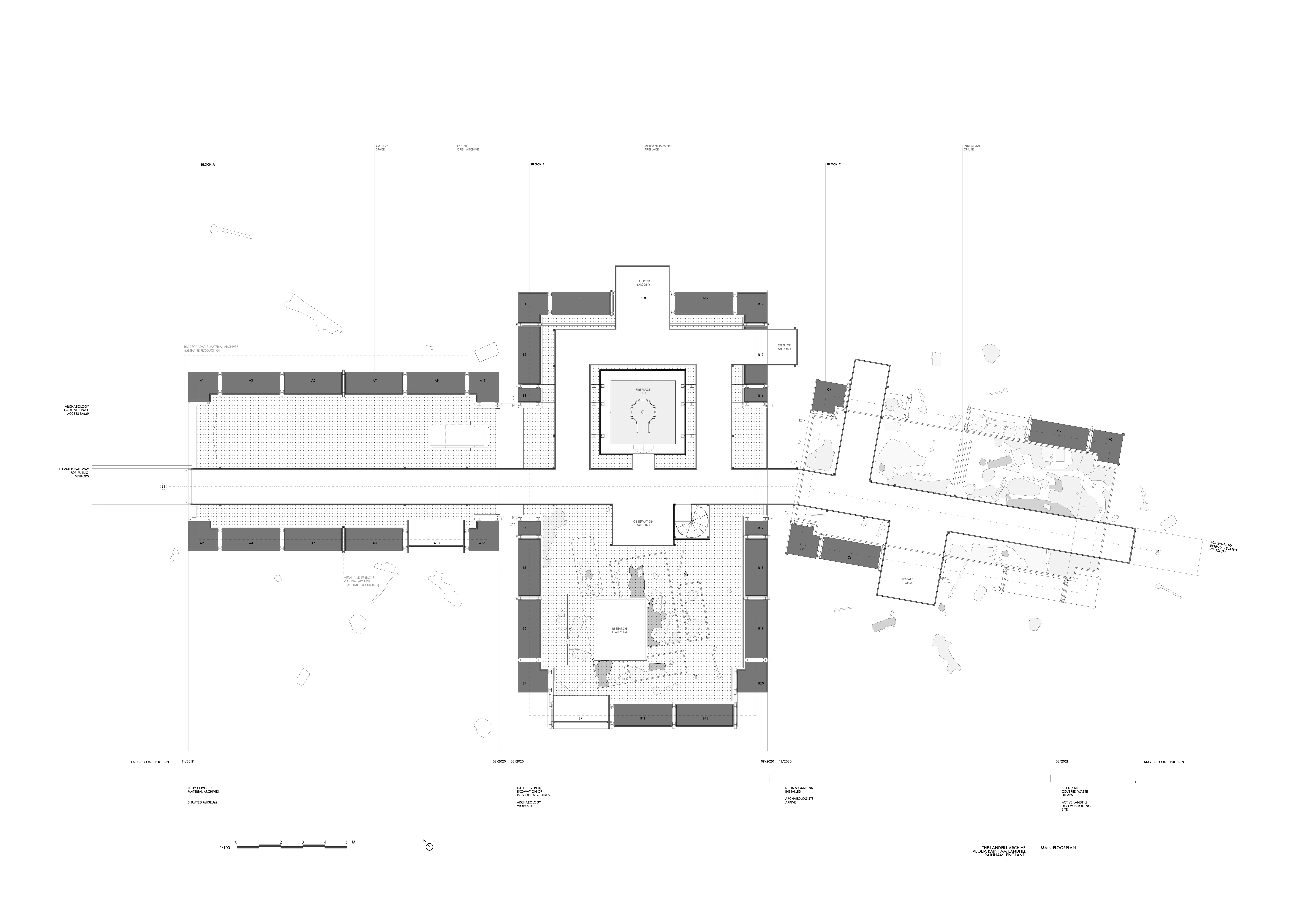
“If you dig in someone’s trash, you’re going to know about that person, ... you’re going to know things they don’t want you to know. One day, an archaeologist will dig in [a landfill] to learn about us - because the truth is in the trash.”

Wastelands interrogates landfills as a contingent archaeological landscape, an active record of how we live today. Aligned with existing landfill operation, the project develops a set of building methods atop landfills that allow for a situated material museum to be built during the covering of the landfill.